Technical
This technical project focused on designing an intimate yet energetic dining space for Umi & Co, a Japanese fusion restaurant in Cape Town’s CBD. The design merges modern Japanese aesthetics with local cultural influences, emphasizing spatial efficiency, functionality, and detailed technical resolution. Through careful planning of kitchen operations, lighting, and material specification, the space reflects Umi & Co’s values of creativity, quality, and transparency, transforming dining into a refined and engaging experience.
Resturaunt Design
Technical Documents
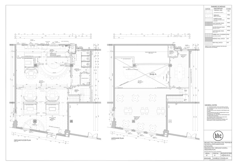
Ground Floor & Mezzanine Plan
Click on image for a more detailed view


Sectional Elevations
Click on image for a more detailed view


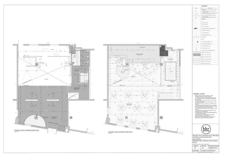
Ceiling & Lighting Plan
Click on image for a more detailed view


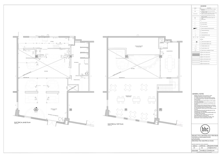
Electrical plans
Click on image for a more detailed view


Commercial Council Submbission
Click on image for a more detailed view


Company Client Proposal
use arrows to 'page' through




Company Identity Client Presentation
use arrows to 'page' through








